Продажа 3х-комнатной квартиры

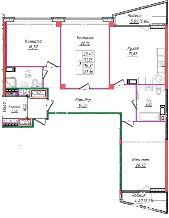
121 м²
Площадь
60 м²
Жилая площадь
21,86 м²
Площадь кухни
12/14
Этаж

8 512 700 ₽

70 145 ₽ за м²

ID объявления 12114321

Поделиться

Добавить в избранное

Представляем уютную квартиру во вторичном фонде, расположенную в кирпичном доме высотой 14 этажей. Пространство отличают высокие потолки 2, 8 метра и панорамные окна, наполняющие интерьер естественным светом и открывающие впечатляющие виды.

Жилой комплекс предлагает комфортную среду для всей семьи: здесь обустроена детская площадка для игр, создана безбарьерная среда для маломобильных групп населения, а также предусмотрены функциональные кладовые помещения для хранения.

Автовладельцы оценят просторный открытый паркинг на 99 машиномест.
Покупка квартиры осуществляется по договору долевого участия (ДДУ) с надежными гарантиями в соответствии с 214-ФЗ.

Этот объект сочетает в себе надежность кирпичных стен, продуманную инфраструктуру и современные подходы к организации жилого пространства. 
id:59623. - Безопасность
- Лучшие юристы окажут полное сопровождение на всех этапах купли/продажи
- Качество и Профессионализм. Наши специалисты признаны лучшими по уровню сервиса порталов.
- Надежность и экономия. Мы являемся ключевыми партнерами всех ведущих банков. Личный ипотечный брокер выберет для Вас оптимальную программу ипотеки.
- Прозрачность. Фиксированное агентское вознаграждение. Оплата только после совершения сделки.
- Комфорт. Весь комплекс услуг купли/продажи. Формат "одного окна" в одном офисе в центре города
- Уверенность. Мы входим в ТОП- 25 ведущих агентств недвижимости РФ по версии рекламных площадок.

Сделка с недвижимостью - работа профессионалов.

Вместе создаем наследие.

Дата обновления: 6 октября 2025