106 м²
Площадь
1
Этажность
6 сот
Площадь участка

11 150 000 ₽

105 189 ₽ за м²

ID объявления 12245746

Поделиться

Добавить в избранное

 ПОДХОДИТ ПОД СЕМЕЙНУЮ ИПОТЕКУ 6%!

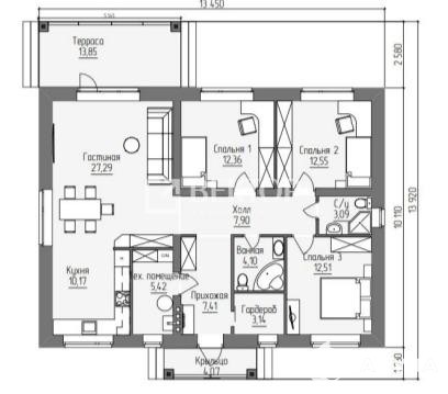
  Предлагаем к продаже отличный дом  площадью 106 кв.м.  Дом выполнен из газосиликата. 
Особенности дома:

Просторная  кухня - гостиная, техническое помещение, большая терасса.
Наружные стены: газосиликатные блоки D500, толщиной 375мм, с облицовкой керамическим кирпичом, толщиной 120мм, воздушный зазор 15мм. Общая толщина стен 510 мм.
3 спальни: оборудована большим окном, обеспечивающим естественный свет и свежий воздух.
Санузел: включает необходимые удобства для комфортного проживания.
Фундамент - железобетонные сваи.

       В стоимость уже включены коммуникации (скважина, септик) и земельный участок. 

      Оформление возможно как за наличный расчет, так и в ипотеку! 
   Возможно строительство на Вашем участке и по Вашему проекту!
   Помощь в одобрении ипотеки!
id:66634. - Безопасность
- Лучшие юристы окажут полное сопровождение на всех этапах купли/продажи
- Качество и Профессионализм. Наши специалисты признаны лучшими по уровню сервиса порталов.
- Надежность и экономия. Мы являемся ключевыми партнерами всех ведущих банков. Личный ипотечный брокер выберет для Вас оптимальную программу ипотеки.
- Прозрачность. Фиксированное агентское вознаграждение. Оплата только после совершения сделки.
- Комфорт. Весь комплекс услуг купли/продажи. Формат "одного окна" в одном офисе в центре города
- Уверенность. Мы входим в ТОП- 25 ведущих агентств недвижимости РФ по версии рекламных площадок.

Сделка с недвижимостью - работа профессионалов.

Вместе создаем наследие.

Дата обновления: 21 ноября 2025